トップページ > 犬山市大字前原字向屋敷 

販売物件情報

  • お気に入りリストを見る
  • 物件情報を印刷する
  • プリンタの設定で「背景を印刷する」と設定しないと「背景画像」が印刷されないことがあります。印刷の際には、必ず「背景を印刷する」設定にしてください。

中古一戸建て

犬山市大字前原字向屋敷 

画像

この物件のお支払い例

頭金0円/ボーナス払い0円

物件価格760万円

月々の支払い20,231

※上記支払例の借入条件:金利0.45%、借入総額760万円、借入期間35年

中古+リノベーションのお支払い例

プラン
頭 金 万円

月々のお支払い33,642

ボーナス払い0円


※上記支払例の借入条件:金利0.45%、借入総額1,263万円、借入期間35年

所在地・交通

所在地 犬山市大字前原字向屋敷 
最寄駅 小牧線 羽黒 徒歩分数 38分
最寄バス停 徒歩分数
小学校校区 犬山市立東小学校 中学校校区 犬山市立東部中学校

※学校区は住所から自動判定したものであり、保証できる情報ではございません。正確な学校区はお問い合わせ下さい。

お問い合わせフォームはこちら

「人型アイコン」を地図上にドラッグすることで『Google Street View』に切り替わります。

※地図上の「対象地」は「愛知県犬山市前原(大字)向屋敷(字)」の場所を指しています。実際の場所ではない場合がございます。詳しくはお問い合わせください。

お問い合わせフォームはこちら

物件概要

価格 760万円 種目 中古一戸建住宅
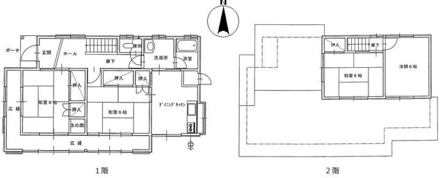
間取り 5DK 間取り内訳 DK6畳 和6畳 和6畳 和6畳 洋6畳
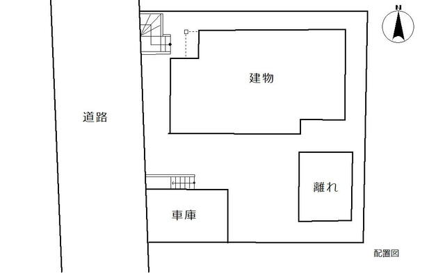
土地面積 206.98㎡ 私道面積
建物面積 76.17㎡ 建物構造規模 軽量鉄骨 2階建
築年月(竣工月) 1977年10月 駐車場  
建ぺい率/容積率 60%/200% 都市計画 市街化調整区域
接道状況 西6m 公道 接面14.7m    一方道路
地目 宅地
土地権利 所有権 地勢 高台
用途地域 無指定
現況 空家 取引態様 媒介
建築確認番号

取引条件等

引渡し 相談

その他

設備 追焚機能、システムキッチン、電気、都市ガス、上水道、下水道、側溝、庭
特徴
諸条件・相談
情報登録日 2025年4月25日 情報更新予定日 2026年4月4日
物件番号 47550
最近見た物件
丹羽郡扶桑町大字高雄字柳前 間取り:3LDK 建物面積:97.81㎡

ページの先頭へ

Copyright (C) ウチカエル, All Rights Reserved.